Search Homes

209 Old Sumner RoadBuckfield, ME 04220Price: $330,000

  • Price: $330,000
  • Est. Mortgage of $/month
  • 38 Days on Market
$
$
%
$/month over payments
Federal 30-year interest rate: 6.22% last updated on Nov 6, 2025
* All Figures are estimates. Check with your bank or proposed mortgage company for actual interest rates.
This product uses the FRED® API but is not endorsed or certified by the Federal Reserve Bank of St. Louis.
  • $330,000List Price
  • 3Bedrooms
  • 2Bathrooms
  • 4Acreage
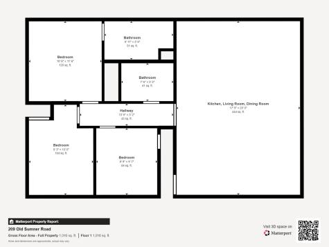
  • 1,016Square Feet
Active Under Contract

Listing Tools

Listed by Fontaine Family-The Real Estate Leader (207-784-3800)
Welcome to this inviting 3-bedroom, 2-bath raised ranch set on 4 private acres in Buckfield. Tucked back from the road, this home offers a peaceful and relaxing ambience with an abundance of wildlife and a walking path that connects to a network of scenic trails, perfect for enjoying Maine's beauty year-round. Inside, you'll find a bright, sun-filled layout with newer laminate flooring and a primary suite featuring an en suite bath and walk-in shower. Some thoughtful updates from 2024 to now include a new kitchen sink, fresh paint, updated faucets and hardware, new light fixtures, and a whole-house water system. Step outside to the large deck off the kitchen, recently refinished, ideal for entertaining or relaxing in nature. A whole-house generator hookup provides added comfort and peace of mind. There is also extra space in the basement that is currently being used as a home gym. Close to fun seasonal activities, 30 minutes to Lewiston/Auburn, 15 minutes to the local grocery store yet offering serene privacy, this home perfectly balances modern convenience with a natural retreat.

Property Details of 209 Old Sumner Road

Property Details

Interior Features

Exterior Features

Utilities and Appliances

Community

Other Details

Map Location

Driving Directions

Listing data is derived in whole or in part from the Maine IDX & is for consumers' personal, non commercial use only. Dimensions are approximate and not guaranteed. All data should be independently verified. ©2025 Maine Real Estate Information System, Inc. All Rights Reserved. equal opportunity housing logo   Privacy Policy

Team Syrene | Bean Group participates in ©2025 Maine Listings Internet Data Exchange program, allowing us to display other Maine IDX Participants' listings. This website does not display complete listings. Certain listings of other real estate brokerage firms have been excluded. Mortgage figures are estimates. Check with your bank or proposed mortgage company for actual interest rates. This product uses the FRED® API but is not endorsed or certified by the Federal Reserve Bank of St. Louis.

Demographic, Market and School data powered by Faraday.

I agree to receive marketing and customer service calls and text messages from Team Syrene | Bean Group. To opt out, you can reply 'stop' at any time or click the unsubscribe link in the emails. Consent is not a condition of purchase. Msg/data rates may apply. Msg frequency varies. Privacy Policy.

Do not fill in this field:

This site is protected by reCAPTCHA and the Google Privacy Policy and Terms of Service apply.

Do not fill in this field:

This site is protected by reCAPTCHA and the Google Privacy Policy and Terms of Service apply.

Do not fill in this field:

This site is protected by reCAPTCHA and the Google Privacy Policy and Terms of Service apply.

Do not fill in this field:

This site is protected by reCAPTCHA and the Google Privacy Policy and Terms of Service apply.

Do not fill in this field:

This site is protected by reCAPTCHA and the Google Privacy Policy and Terms of Service apply.

Do not fill in this field:

This site is protected by reCAPTCHA and the Google Privacy Policy and Terms of Service apply.

$

Do not fill in this field:

This site is protected by reCAPTCHA and the Google Privacy Policy and Terms of Service apply.

Buckfield, ME Schools

School NameDistanceTypeGrades

Buckfield, ME Real Estate Market Data

There is no data available

Buckfield, ME Demographics

There is no data available